文章来源:鲁班装饰 发布日期:2018-12-23 16:26 阅读次数:2823次
------------------------------------------------------------------- ◆
这是一套93平米的旧房,原本空间看起来狭小拥挤,很多不尽人意的地方经过鲁班装饰原创设计中心王老师之手,那些不尽人意的地方再也不在了,整个户型与设计让人一看就怦然心动。下面一起来看看成都鲁班装饰公司如何让93平的旧房改造瞬间大一倍。
◆ ----------------------------------------------------------------------

设计师:杨桢
公 司:成都鲁班装饰工程有限公司
毕业于:四川美术学院
工作年限:6年
设计特点:专注空间设计与色彩搭配,对收纳与美观的把控.
∞∞∞∞∞∞∞∞∞∞∞∞∞∞∞∞∞∞∞∞∞∞∞∞∞∞∞∞∞∞∞∞∞∞∞∞∞∞∞∞∞∞∞∞∞∞∞∞∞∞∞∞∞∞∞∞∞∞∞∞∞∞∞∞∞∞∞∞
设计师在与业主王女士的沟通中了解到王女士是个非常浪漫注重舒适感与氛围感的时尚女士
家中有个7岁的儿子
非常注重收纳空间的运用
所以温江二手房改造设计师杨桢美女根据王女士的需求结合美观实用为王女士设计了这套让人怦然心动的爱居
∞∞∞∞∞∞∞∞∞∞∞∞∞∞∞∞∞∞∞∞∞∞∞∞∞∞∞∞∞∞∞∞∞∞∞∞∞∞∞∞∞∞∞∞∞∞∞∞∞∞∞∞∞∞∞∞∞∞∞∞∞∞∞∞∞∞∞∞
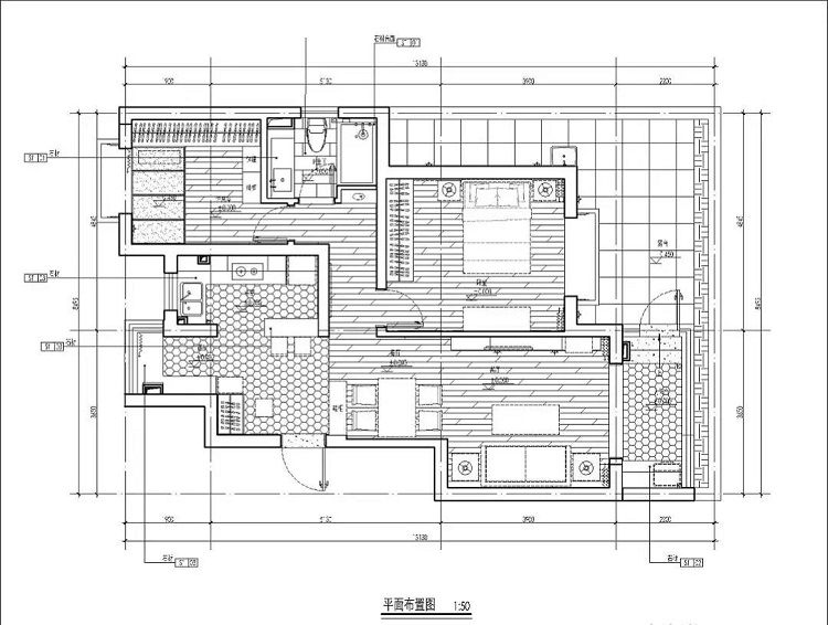
户型改造

户型2室一厅
建筑面积:93平米
造价:10万
位于:成都市温江区柏林小镇
原本进门的左侧是生活阳台作为衣服的晾晒区改为西厨
卫生间原本是正对入户大门的现在也错开了位置
以前尴尬的布局
经过了设计师杨桢的改造变得即合理又方便
◆入户◆
设计师在入户空间考虑了风水与灶具错开规避了开门见灶人财两浩的风水
进门白色的6角大理石纹理地砖
浅灰色的乳胶漆墙面
纯白的厨柜
干净大气材质与颜色的碰撞和谐切不突兀
让原本昏暗的入户
明亮又不失层次感

五居 | 400平米 | 40万
| 890平米 | 120万
| 800平米 | 600万
| 800平米 | 100万
| 410平米 | 35万
跃层 | 347平米 | 35万
跃层 | 800平米 | 120万
跃层 | 1000平米 | 1200万